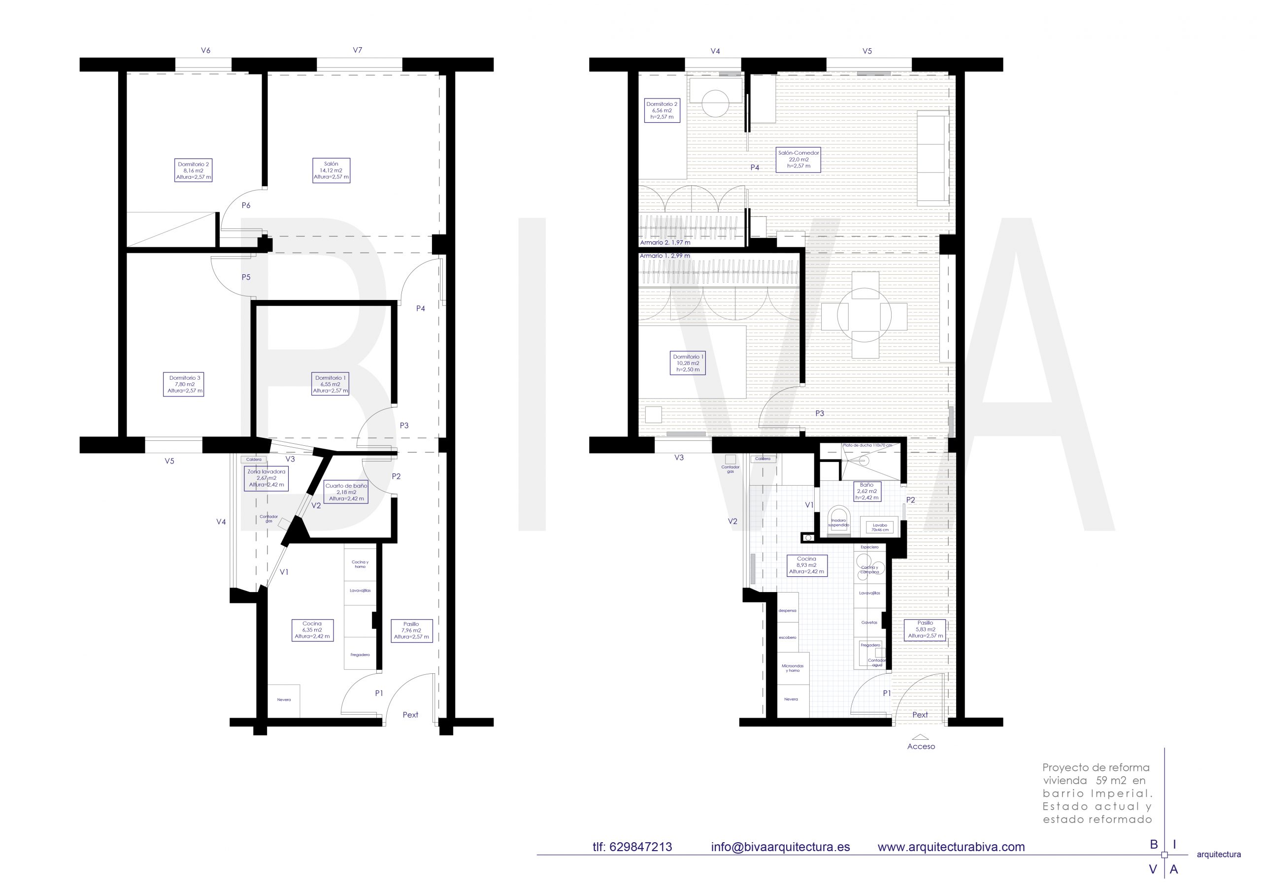
• Reforma de piso 59 m2
  • Finalización de la obra en diciembre de 2021
  • Localización zona Imperial, Madrid

Plano estado actual y reformado

Resultado de la reforma

Antes de la reforma