Saltar al contenido

BIVA Arquitectura

Proyectos de reformas integrales

Menú principal
  • Quiénes somos
  • Reformas
    • Viviendas
    • Locales
  • Servicios
    • Licencias y terrazas
    • Certificado Eficiencia Energética
  • Presupuesto

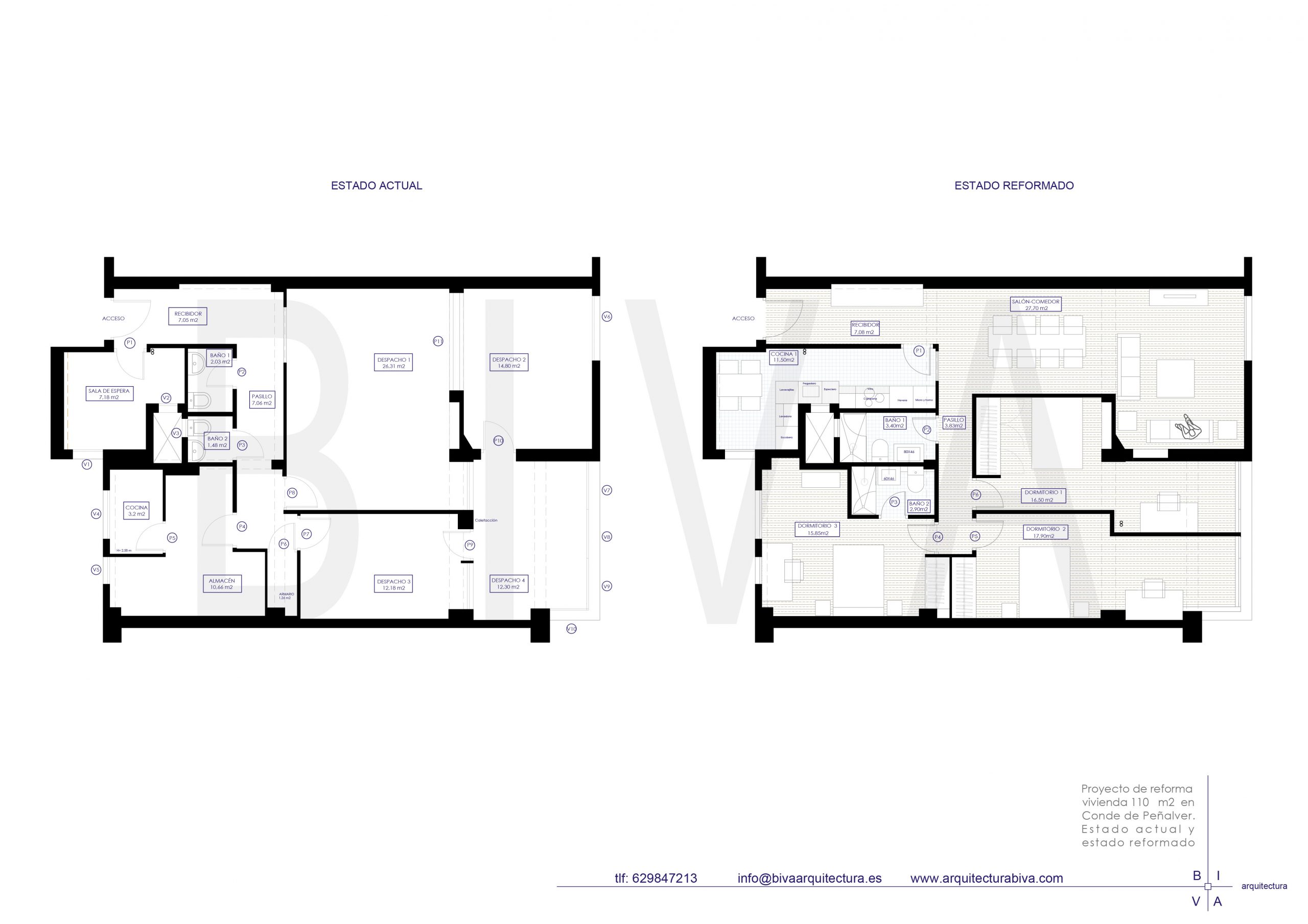
  • Reforma de piso 110 m2
  • Finalización de la obra en julio de 2021
  • Localización barrio Salamanca, Madrid

Plano estado actual y reformado

Resultado de la reforma

Antes de la reforma

Acceso
Sala de espera
Acceso
Despacho 1
Despacho 1
Despacho 2
Despacho 3
Despacho 3
Despacho 4
Pasillo
Cuarto de baño 1
Cuarto de baño 2
Armario
Almacén
Cocina

Información de contacto

info@bivaarquitectura.es
+(34) 629847213
Copyright. Todos los derechos reservados. | Tema: Minimal Blog de WPinterface

Escríbenos!