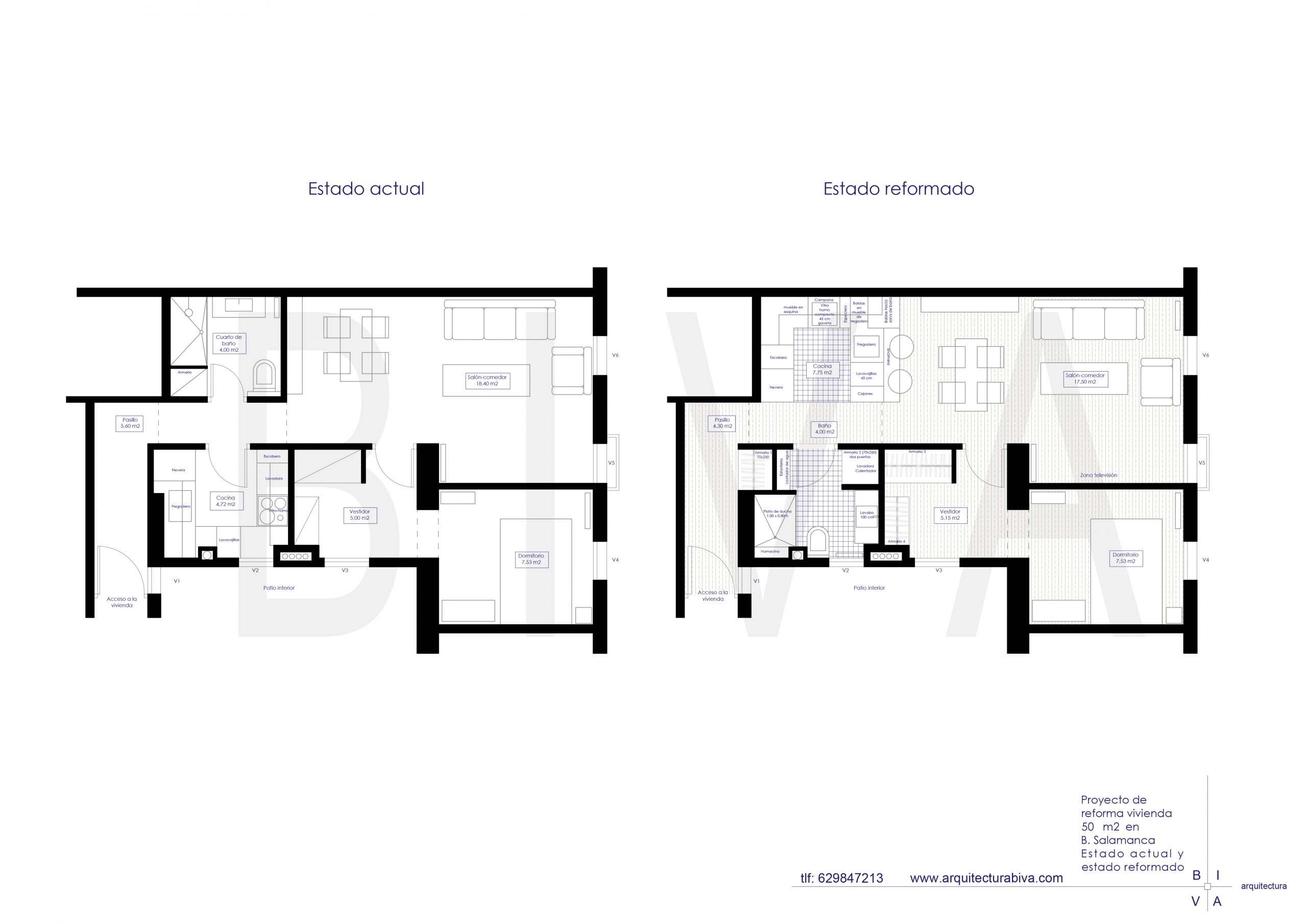
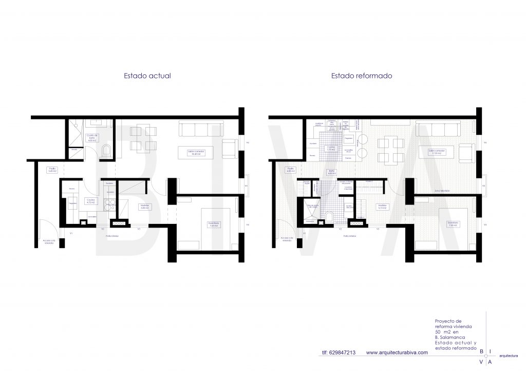
B.Salamanca

  • Reforma de piso 50 m2
  • Finalización de la obra en abril de 2022
  • Localización barrio Salamanca, Madrid

Resultado de la reforma

COCINA

CUARTO DE BAÑO

Plano estado actual y reformado

Antes de la reforma